Fox Hollow residence
Project in progress… Stay tuned!
Selections for the Living Room and Entry.
Selections for the Dining Room.
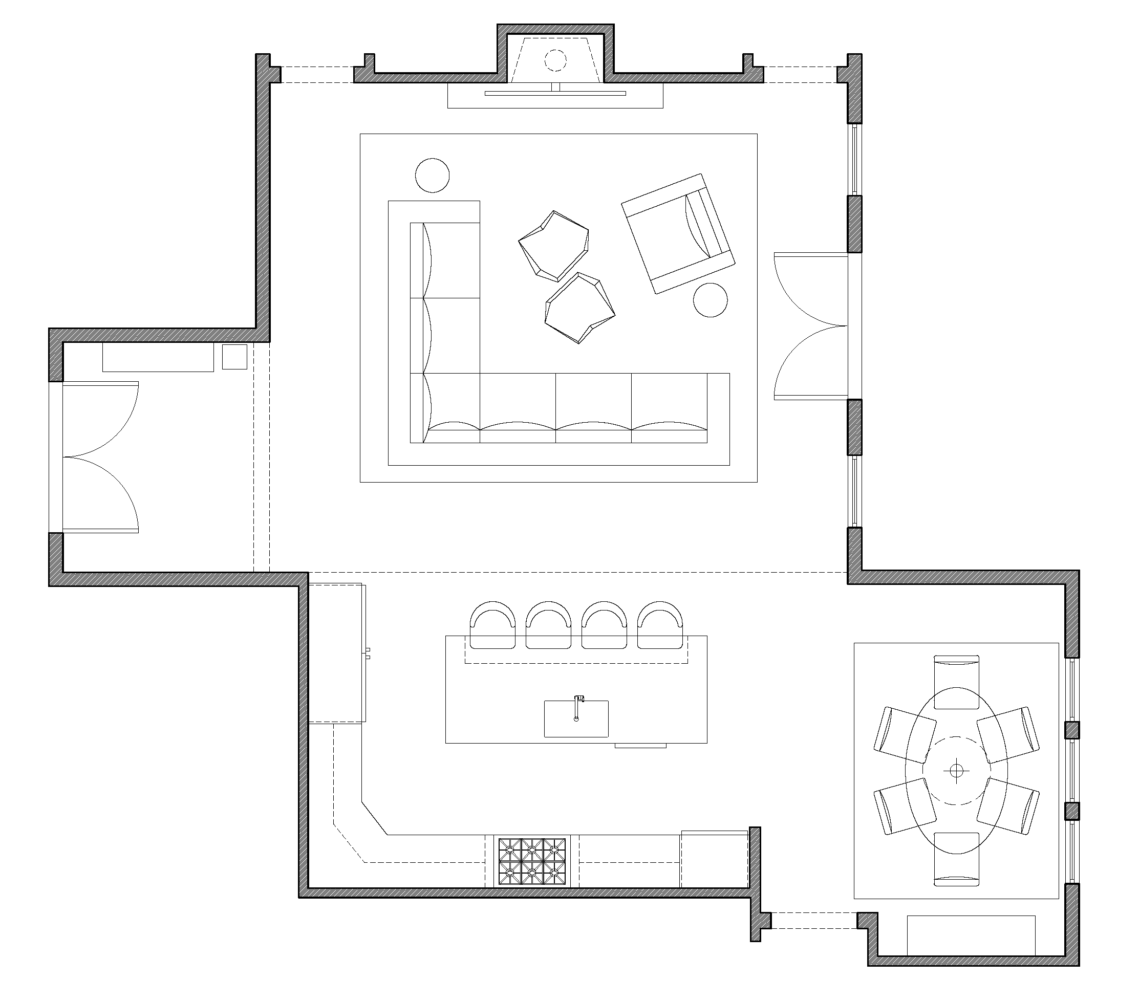
Furniture Plan for the selected areas of the Fox Hollow Residence.
Project in progress… Stay tuned!
Selections for the Living Room and Entry.
Selections for the Dining Room.
Furniture Plan for the selected areas of the Fox Hollow Residence.